Stan 5
Ruža vetrova 2Dvosoban stan 38m2
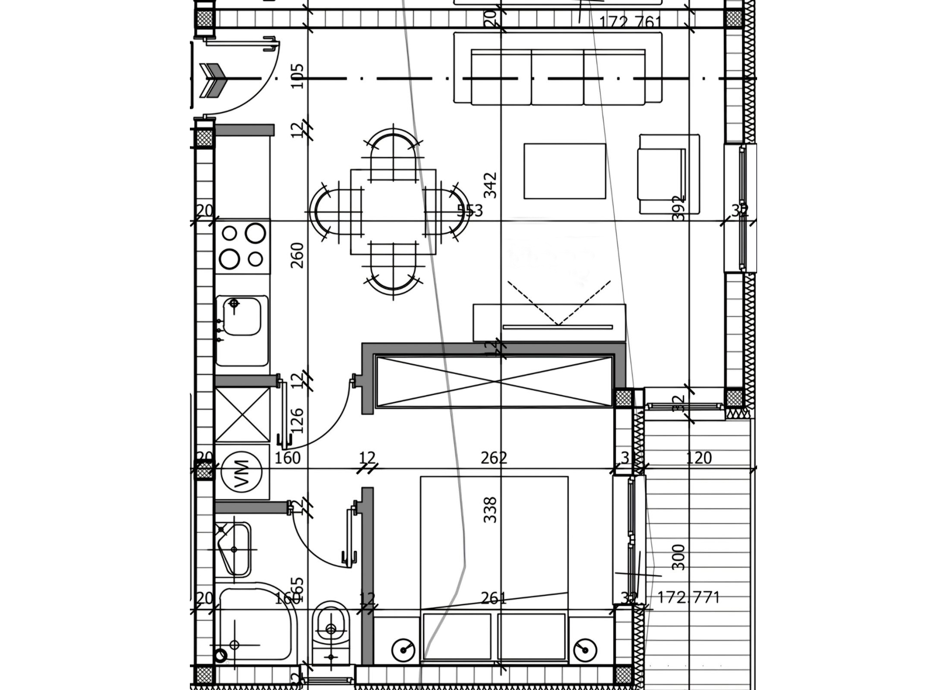
Prvi sprat nove zgrade, smeštene u atraktivnom delu grada, pruža stanarima udobnost i praktičnost za svakodnevni život.
Raspored prostorija:
- Ulaz + komunikacija
- Kuhinja + ručavanje
- Dnevni boravak
- Kupatilo
- Spavaća soba
- Terasa
Pogodnosti koje pružamo
Sadržaj
✔ 2 Sprata
✔ Privatni parking 11
✔ Rampa na ulazu
✔ Kamere 0-24
✔ Ograđeno dvorište
✔ Krinker opeka na fasadi
Oprema
✔ Domaća keramika
✔ Bosch radijatori
✔ Kovano gvožđe
✔ Inverter klima
✔ Tarket
✔ Sigurnosna vrata
Dokumenta
✔ Uknjiženo
✔ Upotrebna dozvola
✔ Povraćaj PDV-a
✔ Građevinska dozvola
✔ Mogućnost stambenih kredita
✔ Energetski pasoš
✔ Lokacijska dozvola








